
| 秋田市千秋矢留町(トーカンマンション千秋鷹匠橋 406号室) | 1350万円 |
| 所在地 | 秋田市千秋矢留町 (トーカンマンション千秋鷹匠橋 406号室) | ||
|---|---|---|---|
| 価格 | 1350万円 | ||
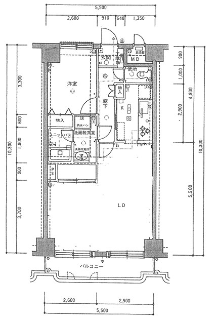
| 築年月日 | 平成元年12月12日 | 間取り | 1LDK 専有面積56.60㎡ バルコニー6.81㎡ |
| 管理費 | 9,800円 | 修繕費 | 9,700円 |
| 設備 | 室内洗濯機置き場・給湯・エレベーター・都市ガス・上下水道 | ||
| 用途地域 | 商業地域、準防火地域 | 管理形態 | 管理人日勤 |
| 取引態様 | 仲介 | 引き渡し | 相談 |
| 方位 | 東向き | 構造 | 鉄骨鉄筋コンクリート造陸屋根14階建 |
| 学区 | 保戸野小学校・秋田東中学校 | 交通 | バス停:秋田警察署前 下車 徒歩 約6分 |
| 備考 | リフォーム工事済み キッチン交換、ユニットバス交換、洗面台交換、トイレ交換、リビングエアコン交換、全室灯具交換、全室フロア上貼り |
||