
| 男鹿市松木沢字鵜木境 | 280万円 |
| 所在地 | 男鹿市松木沢字鵜木境 | 価格 | 280万円 |
|---|---|---|---|
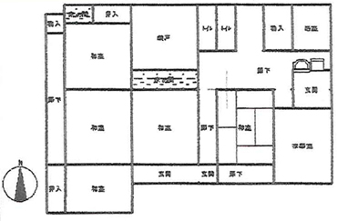
| 土地面積 | 1183.16㎡(357.90坪) | 地目 | 宅地・田 |
| 学区 | 美里小学校、潟西中学校 | 交通 | - |
| 設備 | 井戸水・都市ガス・灯油使用 上下水道は前面道路 | ||
| 用途地域 | 都市計画区域外 | 取引態様 | 仲介 |
| 建ぺい率 | - | 容積率 | - |
| 方位 | 西 | 引き渡し | 相談 |
| 前面道路 | 県道7m | ||
| 備考 | 作業小屋もあり。大潟村にも近し。 居間は南向き日当たり良好! 広々敷地!家庭菜園・野菜作りに最適!田舎暮らしに最適! 前は県道、後ろは通学路のため除雪も入ります。 美里小学校、Aコープ、若美支所、ガソリンスタンドそば!バス停目の前! 現況:宅地・雑種地 建物:木造亜鉛メッキ鋼板葺平屋建 4SLDK 宅地658.16㎡+田(雑種地)525㎡=1183.16㎡ |
||